25m Span Overhead Crane
Structural Design Considerations
Girder Type:
Box girder (common for heavy loads).
I-beam girder (lighter loads, cost-saving).
Support Structure:
Rail-mounted for precision movement.
Rubber-tired (RTG) for portability.
Finite Element Analysis (FEA):
Used to optimize stress distribution in 20m spans
Key Specifications for 20m Span Cranes
| Parameter | Single-Girder | Double-Girder |
|---|---|---|
| Max. Load | ≤20 tons | Up to 800+ tons |
| Lifting Height | 3–16m | 16–28m |
| Lifting Speed | 0.7–8 m/min | Adjustable (VFD) |
| Control Method | Pendant/Remote | Cabin/Remote |
| Duty Class | A3–A5 | A6–A8 (heavy-duty) |
- Capacity: 5-800/50ton
- Span length: 4-35m
- Lifting height: 3-50m
- Work duty: A4, A5, A6,A7
- Raged voltage: 220V~690V, 50-60Hz, 3ph AC
- Work environment temperature: -25℃~+50℃, relative humidity ≤85%
- Crane control mode: Floor control / Remote control / Cabin room

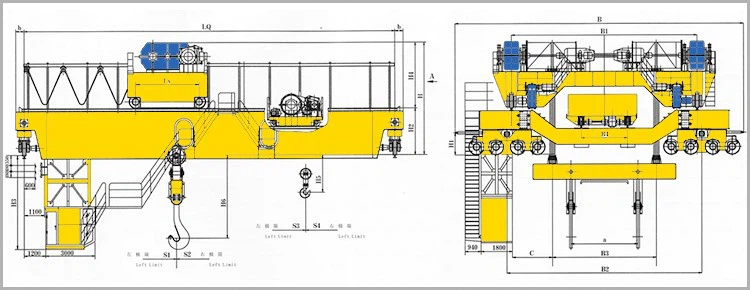
Pictures & Components
Components of a 20m Span Overhead Crane
A 20m span overhead crane consists of several critical components that ensure safe and efficient lifting operations. Below is a detailed breakdown of its key parts, along with their functions and industry applications.
1. Bridge/Girder (Main Load-Bearing Structure)
Function: Supports the trolley and hoist, spanning the 20m work area.
Types:
Single-Girder: Lighter loads (up to ~20 tons), cost-effective.
Double-Girder: Heavy-duty (up to 500+ tons), higher stability.
Material: High-strength steel or aluminum (for corrosion resistance in harsh environments).

2. Trolley & Hoist Assembly
Trolley: Moves horizontally along the girder, carrying the hoist.
Can be manual or motor-driven.
Hoist: The lifting mechanism (electric chain or wire rope).
Open Winch: Used for heavy-duty applications (e.g., 250–500 tons).
Integrated Controls: Adjustable speeds for precision handling.

3. End Trucks & Runway System
End Trucks: Wheeled assemblies at each end of the girder.
Top-Running: Moves on rails mounted on runway beams.
Underhung: Suspended from ceiling structures (for low headroom).
Runway Rails: Guide the crane's movement (standard or curved for specialized paths).

4. Drive Mechanism
Travel Motors: Power longitudinal movement along the runway.
Gearboxes & Brakes: Ensure smooth acceleration/deceleration.
Variable Frequency Drives (VFDs): Enable precise speed control.
5. Control System
Pendant Control: Handheld wired remote for operator safety.
Radio Remote/Wireless: Flexible operation in large facilities.
Automation Options: Programmable logic controllers (PLCs) for smart warehousing.

![]()
6. Safety Components
Limit Switches: Prevent over-travel of the trolley or bridge.
Overload Protection: Sensors halt operation if capacity is exceeded.
Anti-Collision Systems: Essential for multi-crane setups.

7. Electrical & Power Supply
Festoon Systems/Cable Reels: Manage power and signal cables.
Busbars: Deliver uninterrupted power in high-duty cycles.

8. Optional Attachments
Magnets/Vacuum Lifters: For steel sheets or fragile loads.
Spreader Beams: Container handling in ports.
Weighing Systems: Real-time load monitoring.

SKETCH

Main Technical Data

Advantages
Key Advantages:
Large Coverage Area
The 20m span provides extensive coverage, ideal for wide workspaces like factories, warehouses, and shipyards
Eliminates need for multiple cranes in large facilities
Heavy Lifting Capacity
Double girder versions can handle up to 500+ tons
Single girder models suitable for 1-20 ton loads
Robust construction ensures stability during heavy lifts
Space Optimization
Clears floor space by operating overhead
Underhung versions maximize vertical space in low-clearance facilities
Precision Handling
Variable frequency drives enable smooth acceleration/deceleration
Fine-control options for delicate positioning
Customizable Configurations
Available in top-running or underhung designs
Options for explosion-proof, high-temperature, or corrosion-resistant models
Cost Efficiency
Lower long-term costs compared to multiple smaller cranes
Reduced labor requirements for material handling
Application
Primary Applications:
1. Heavy Manufacturing
Automotive plants: Moving vehicle chassis and large components
Steel mills: Handling coils, plates, and structural beams
Machinery production: Positioning heavy equipment parts
2. Logistics & Warehousing
Large distribution centers: Pallet and container handling
Port facilities: Container stacking and movement (using RTG variants)
3. Construction & Infrastructure
Precast concrete plants: Moving large concrete elements
Bridge construction: Positioning structural components
4. Energy Sector
Power plants: Turbine and generator maintenance
Renewable energy: Wind turbine component handling
5. Shipbuilding & Repair
Dry docks: Moving ship sections and heavy marine components
Assembly areas: Positioning large hull segments
6. Aerospace Industry
Aircraft assembly: Moving fuselage sections and wings
Engine maintenance: Handling heavy propulsion systems
Specialized Applications:
Foundries: Special high-temperature models for molten metal
Mining: Heavy-duty versions for ore processing equipment
Nuclear Facilities: Radiation-resistant designs for containment areas
Crane Production Procedure
1. Design & Engineering
Requirements Analysis: Determine load capacity, span, lifting height, and operating environment.
CAD Modeling: Create 3D designs and structural calculations (stress analysis, deflection, etc.).
Material Selection: Choose suitable casting materials (typically cast steel or ductile iron) for key components like girders, end carriages, and hooks.
Regulatory Compliance: Ensure designs meet standards (ISO, DIN, FEM, or ASME).
2. Pattern Making & Mold Preparation
Pattern Creation: Wood or metal patterns are made for casting molds.
Sand Mold Preparation:
Use resin-bonded sand or green sand for mold cavities.
Cores (for hollow sections) are prepared separately.
3. Casting Process
Melting & Pouring:
Metal (e.g., carbon steel, alloy steel) is melted in a furnace.
Molten metal is poured into molds under controlled conditions.
Cooling & Solidification: Allow the casting to cool slowly to avoid defects.
Shakeout & Cleaning: Remove sand molds, and clean castings (shot blasting, grinding).
4. Machining & Finishing
Rough Machining: Remove excess material (gates, risers).
Precision Machining: CNC machining for critical dimensions (bearing seats, bolt holes).
Surface Treatment: Painting, galvanizing, or anti-corrosion coatings.
5. Fabrication of Bridge Girder & End Carriages
Welding/Assembly:
Fabricate box girders or I-beams (if hybrid design).
Weld/bolt end carriages (with wheels for movement).
Stress Relief Heat Treatment (if needed) to reduce residual stresses.
6. Assembly of Crane Components
Hoist & Trolley Installation: Mount electric hoist or wire rope system.
Rail & Runway Setup: Install crane rails on supporting structure.
Electrical System Integration: Wire motors, controls, limit switches, and safety devices.
7. Testing & Quality Control
Dimensional Inspection: Verify tolerances per design specs.
Non-Destructive Testing (NDT):
Ultrasonic, magnetic particle, or dye penetrant testing for cracks.
Load Testing:
Static Load Test: 125% of rated capacity.
Dynamic Load Test: 110% of rated capacity with movements.
Functional Test: Check braking, lifting, and travel operations.
8. Painting & Corrosion Protection
Apply primer and corrosion-resistant paint.
Markings (capacity, serial number, warnings) as per standards.
9. Packaging & Delivery
Disassemble (if needed) for shipping.
Protect critical components during transit.
10. Installation & Commissioning (On-Site)
Reassemble on the customer's runway.
Final alignment and calibration.
Operator training and handover.

Workshop View
The company has installed an intelligent equipment management platform, and has installed 310 sets (sets) of handling and welding robots. After the completion of the plan, there will be more than 500 sets (sets), and the equipment networking rate will reach 95%. 32 welding lines have been put into use, 50 are planned to be installed, and the automation rate of the entire product line has reached 85%.





Hot Tags: 25m span overhead crane, China 25m span overhead crane manufacturers, suppliers, factory, Gantry Crane, Steel Factory Overhead Crane, Single Girder Gantry Crane, Single Girder Overhead Crane, Single Girder Overhead Crane Company, Forged Wheel
Previous
Bucket Overhead CraneYou Might Also Like
Send Inquiry























