U Type Subway Turn Slag Hook Gantry Crane
The U Type Subway Turn Slag Hook Gantry Crane consists of a gantry, a crane, a trolley operating mechanism, a cab and an electrical control system. The gantry is a box-shaped structure with rails on the sides of each beam. The legs are divided into A type and U type according to user requirements. Control can be ground control, remote control, cab control or both. The cab is equipped with adjustable seats, floor insulation pads, tempered glass windows, fire extinguishers, fans, and auxiliary equipment such as air conditioners, audible alarms, and intercoms. Can be configured according to user requirements.

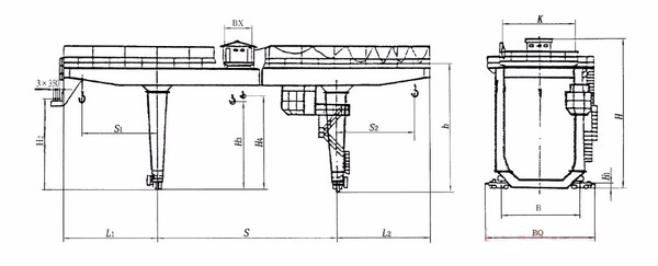
Weight (KG):86000 kg
Product name:U type subway turn slag hook gantry crane
Lifting Capacity:75 Tons
Span:18~35m
Lifting height:main hook 10m / Aux. hook 13.5m
Control Method:Cabin Control
Work duty:A6
Voltage:380V/50HZ/3Ph AC
Pictures & Components

Gantry structure: The main frame of U Type Subway Turn Slag Hook Gantry Crane, typically spanning the width of a subway turning area. Supports other components and allows the crane to move along the track.

Lifting Mechanism: Includes hoist, wire rope and hook assemblies used to lift and lower loads such as bulk and other materials. The lifting mechanism is usually installed on a trolley, which can move horizontally along the gantry beam.

Trolley mechanism: The trolley mechanism can make the hoist move horizontally along the gantry beam. It usually consists of wheels or tracks running along a beam, powered by a motor or other drive system.
Crane controls: This depends on the complexity of the U Type Subway Turn Slag Hook Gantry Crane but typically includes operator control of lift, trolley movement and crane movement. Modern gantry cranes often employ remote control systems or computerized interfaces for precise operation.

Electrical system: including the U Type Subway Turn Slag Hook Gantry Crane's power supply, motor, controller, wires and other electrical components. Safety features such as limit switches and overload protection are also part of the electrical system.

Rails: These rails are installed on the ground and provide the movement track for the U Type Subway Turn Slag Hook Gantry Crane. For U-shaped subway swing gantry cranes, the track can be curved to match the turns of the subway track.

Safety Features: Various safety features are built into the U Type Subway Turn Slag Hook Gantry Crane design to prevent accidents and ensure safe operation. These include emergency stop buttons, sirens, limit switches and overload protection systems.
Sketch:

Main Technical Data

Advantages

Versatility: Designed to operate in subway turning areas, this U Type Subway Turn Slag Hook Gantry Crane can efficiently move slag and other materials in tight spaces. Its cornering capabilities make it suitable for use in environments where traditional cranes cannot operate effectively.
Space efficiency: The crane's U-shaped design enables it to operate within the limited space of the subway's turning area without interfering with the movement of trains or other equipment. Therefore, it is ideal for moving materials where space is limited.
Precise positioning: Gantry cranes are known for their ability to position loads precisely, and the Subway U-turn hook gantry crane is no exception. Its design allows for precise placement of hook components, ensuring efficient material handling.
High Load Capacity: These cranes are generally designed to handle heavy loads, making them suitable for the demanding requirements of soil handling in subway turning areas. Lift and transport large quantities of materials with ease, increasing productivity and efficiency.
Safety: Safety is always a top priority when working with a U Type Subway Turn Slag Hook Gantry Crane, especially in tight spaces like subway turning areas. The U-shaped subway turning sliding hook gantry crane is equipped with multiple safety functions such as overload protection, limit switches, and emergency stop buttons to ensure safe operation at all times.
Durability: Gantry cranes can withstand harsh industrial environments, and U-shaped subway hook gantry cranes are no exception. Constructed from heavy-duty materials, these cranes are designed for heavy-duty use and provide long-term reliability and durability.
Cost-Effectiveness: Despite their rugged nature, gantry cranes tend to be more cost-effective than other lifting solutions, especially when you consider their long-term performance and efficiency benefits.
Application

Slag handling: As the name suggests, one of the main uses of this type of crane is slag handling at metro turning points. Slag is a byproduct of the metal smelting process and often needs to be removed from the tracks to ensure safe and smooth train operation. The U gantry crane's slew capacity and heavy lifting capabilities make it ideal for this job.
Transporting materials in small spaces: The subway has sharp turns and can be difficult to move, especially large equipment such as cranes. The compact design of U-shaped gantry cranes allows them to operate effectively in tight spaces and is suitable for transporting materials such as construction materials, equipment and maintenance materials within metro facilities.
Maintenance and repair work: Metro systems require regular maintenance and repairs to ensure operational efficiency and safety. U-gantry cranes are used to lift and position maintenance equipment, tools and replacement parts to facilitate repair work on track, switches, signals and other infrastructure components at turning yards.
Construction Projects: U-gantry cranes are used to lift and transport construction materials, machinery and other supplies during construction or renovation projects within metro facilities. The crane is capable of operating in tight spaces, helping to move materials at construction sites in subway turning areas.
Installing and dismantling equipment: Subway facilities frequently require the installation or disassembly of equipment such as escalators, elevators, ticket machines and platform components. U-shaped gantry cranes help lift and position these large items to facilitate installation, maintenance or replacement operations in subway turning areas.
Waste Management: In addition to sediment, cranes can also be used to handle other types of waste and debris generated within the metro system, such as discarded materials and equipment. The ability to efficiently lift and transport waste containers and bins facilitates waste management activities within metro turning areas.
Crane Production Procedure

Workshop View
The company has installed an intelligent equipment management platform, and has installed 310 sets (sets) of handling and welding robots. After the completion of the plan, there will be more than 500 sets (sets), and the equipment networking rate will reach 95%. 32 welding lines have been put into use, 50 are planned to be installed, and the automation rate of the entire product line has reached




Hot Tags: u type subway turn slag hook gantry crane, China u type subway turn slag hook gantry crane manufacturers, suppliers, factory, Double Girder Overhead Crane, Double Beam Explosion Proof Overhead Crane, Metallurgical Overhead Crane, Railway Wheel, Steel Mill Overhead Cranes, Electric Hoist Single Girder Gantry Crane
You Might Also Like
Send Inquiry























