Double Girder Goliath Crane
1.A Double Girder Goliath Crane is a type of heavy-duty industrial crane primarily used for lifting and transporting large, heavy loads in open yards, warehouses, shipyards, and manufacturing plants. Unlike overhead cranes, Goliath cranes (also known as gantry cranes) have legs that support the crane on rails or tracks at ground level, rather than being mounted to a building's support structure.
2.Key Features of a Double Girder Goliath Crane:Double Girder Design:Equipped with two parallel girders that span the length of the crane.This design increases the load capacity and stability, making it ideal for lifting extremely heavy loads.High Lifting Capacity:Due to the two girders, the crane can handle loads from several tons up to hundreds of tons, depending on its specifications.
3.Goliath cranes don't require runway beams or support structures like overhead cranes, reducing overall infrastructure costs.Flexibility: Operates in outdoor environments where overhead cranes would be impractical.High Efficiency: Suitable for continuous heavy-duty applications due to its strength and ability to handle large loads.
4.Overall, the double girder Goliath crane is an essential piece of equipment for industries requiring powerful and efficient material handling solutions.
Rated Loading Capacity:80 Ton
Max. Lifting Height:50M
Span:10-80M
Warranty:1 Year
Weight (KG):10000 kg
Rated Lifting Moment:800 KN
Work duty:A5-A8

Pictures & Components
1.Main beam
1.The main beam (or girder) of a Double Girder Goliath Crane plays a critical role in the crane's structural integrity and load-bearing capacity. As the primary horizontal component, it supports the trolley and hoist that carry the load. The design and construction of the main beam directly influence the crane's lifting capacity, span, and operational efficiency.
2.Double Girder Goliath Cranetwo parallel main beams (girders) which run the full span of the crane. This double girder design enhances stability, distributes the load evenly, and allows for higher weight capacities compared to single girder cranes.typically fabricated from high-strength steel to provide maximum strength and durability.The beams are often box-shaped or I-beam structures, designed to minimize weight while maximizing load-bearing capacity.
3.Considerations for the Main Beam:
Fatigue and Stress: As a load-bearing structure, the main beams must be designed to handle fatigue and stress over long-term use, especially in high-duty cycle operations.Corrosion Resistance: For outdoor cranes, such as in shipyards or steel plants, the main beams are often treated with anti-corrosion coatings to withstand environmental factors.Precision Fabrication: Since the main beam supports moving parts (trolley and hoist), precision in its fabrication and installation is crucial for smooth and efficient operation.
4.The main beam in a double girder Goliath crane is the backbone of the crane's structure, providing both the strength to carry heavy loads and the flexibility to move materials across wide areas. Its design is fundamental to the crane's performance, safety, and efficiency in heavy industrial applications.

Lifting System
1.The lifting system of a Double Girder Goliath Crane is one of its core components, responsible for lifting and lowering heavy loads. This system is comprised of several key parts that work together to handle large weights safely and efficiently. Understanding how the lifting system functions is crucial for proper operation and maintenance.
2.The hoist is the primary mechanism that lifts and lowers the load. In a double girder Goliath crane, the hoist is mounted on a trolley that travels along the main girders.The hoist, powered by the lifting motor, raises the load by winding the wire rope onto the drum. Lowering the load unwinds the rope from the drum. The system is designed for smooth operation, ensuring precise load movement.
3.Overall, the lifting system of a double girder Goliath crane is engineered to provide robust, safe, and efficient load-handling capabilities for heavy industrial applications.

End Carriages
End carriages are a critical component of a Double Girder Goliath Crane, as they provide the mobility needed for the crane to travel along rails. Positioned at each end of the crane, these carriages house the wheels, motors, and support structures that allow the crane to move horizontally along the length of its designated track.
2.The end carriages are attached to the ends of the two parallel girders (main beams), supporting the entire structure of the crane and enabling it to move along a pre-defined path.They are designed to handle the load transferred from the crane's main beams, hoist, and trolley, as well as the load being lifted.
3.The end carriage drive system includes motors and gearboxes that propel the crane along the rails. The motors are typically electric and controlled by variable frequency drives (VFDs) to allow smooth acceleration, deceleration, and control over the crane's travel speed.
4.In summary, the end carriages of a double girder Goliath crane are essential for the crane's mobility, stability, and safety, as they support the structure, guide movement along the rails, and house the driving mechanisms that allow for controlled horizontal travel. Properly engineered end carriages contribute significantly to the overall performance and longevity of the crane.
Crane travelling mechanism
1.The crane traveling mechanism of a Double Girder Goliath Crane is responsible for the horizontal movement of the crane along its designated tracks. This mechanism enables the entire crane structure, including the girders, trolley, and hoist, to move along rails installed on the ground. It plays a vital role in allowing the crane to cover a wide working area and transport loads efficiently across long distances.
2.The crane can cover large distances horizontally, making it ideal for applications like shipyards, steel plants, and large warehouses where materials need to be transported over long stretches.· The crane moves horizontally along its rails by powering the wheels through the motors and gearbox. The operator controls the movement speed and direction, which can vary based on the load being carried.
The traveling speed can be adjusted based on the needs of the operation. For heavy or sensitive loads, slower speeds are typically used to ensure safe handling and precise positioning.
3.In summary, the crane traveling mechanism in a double girder Goliath crane enables the crane to move horizontally along rails, providing flexibility and efficiency in large-scale material handling operations. It consists of several components, including wheels, motors, and control systems, all designed to ensure safe, precise, and reliable movement across a wide working area.
5.Trolley travelling mechanism
1.The trolley traveling mechanism of a Double Girder Goliath Crane is responsible for moving the hoist and load horizontally along the crane's two main girders. This mechanism enables precise positioning of the load across the crane's span and is a critical element in the crane's overall material handling capabilities.
2.The trolley frame is a robust structure that carries the hoist and the load. It travels along the top or between the two girders of the crane.
The frame is engineered to be lightweight yet strong enough to support the hoist, hook, and the weight of the lifted load. It typically consists of steel components for high durability and strength.
3.The trolley travels horizontally along the length of the crane's girders, moving the hoist and load to the desired position. The movement is powered by the drive motors, which are controlled by the operator.The wheels ensure smooth movement along the rails, while the flanged design prevents the trolley from derailing or moving laterally.
4.In Summary:The trolley traveling mechanism in a double girder Goliath crane provides horizontal movement along the crane's girders, allowing for precise and efficient load handling. Comprising a strong frame, motorized wheels, a gearbox, braking system, and control interfaces, the trolley enables safe and accurate positioning of loads. This mechanism is essential for increasing the crane's operational range, making it indispensable for large-scale material handling in heavy industries.
6.Crane wheel
1.The crane wheels of a Double Girder Goliath Crane are critical components that support the entire structure and enable the crane to move along rails on the ground. These wheels bear the full load of the crane and the materials it is lifting or transporting, making their design and construction vital to the crane's performance and safety.
2.Key features of the crane wheel in a Double Girder Goliath Crane include:
Material: Crane wheels are typically made of high-strength steel to withstand heavy loads and minimize wear. They are designed to endure the stresses of repetitive use and heavy weight.
Type of wheels: These can be either single-flanged, double-flanged, or flat tread, depending on the rail design. The flanges help to keep the crane on track and prevent derailment.
Wheel alignment: Proper alignment is crucial to avoid excessive wear and tear on the wheels and rails. Misalignment can lead to uneven stress distribution and reduce the lifespan of the components.
![]() |
![]() |
![]() |
7.Crane hook
1.The crane hook is one of the most critical components of a Double Girder Goliath Crane, as it directly interfaces with the load being lifted. 2.Key Features of the Crane Hook in a Double Girder Goliath Crane:
Material: Crane hooks are typically made from high-strength alloy steel or forged steel to handle heavy loads and endure stress without deforming or breaking. The material is chosen for its tensile strength and durability.
Hook Design:
Single or double hooks: Depending on the application and load requirements, a Goliath crane might use a single hook or a double hook system for better load distribution.
Shank hook: Common for heavy-duty operations, it's a solid design with high load-carrying capacity.
Ramshorn hook: Often used for handling larger loads or complex lifting, where stability is a concern. Its double-lobe design helps in distributing the weight.
Hook Rotation: The crane hook is often designed to rotate, which can be either manual or powered. This allows the operator to align the hook with the load for precise lifting and placement.
Safety Latch: Modern crane hooks usually include a safety latch to prevent the load from accidentally slipping off the hook during operation. This is essential for both operator safety and to protect the load.
3.Safety and Maintenance :Regular inspection of hooks for cracks, excessive wear, and deformations is mandatory to ensure operational safety.
Hooks may require periodic testing to comply with safety standards and to ensure they are in good working condition.
![]() |
![]() |
![]() |
8.Motor
1.The motor in a Double Girder Goliath Crane is a crucial component responsible for powering various crane movements, including hoisting, trolley movement, and gantry travel. The motor's performance directly affects the crane's efficiency, speed, and load-handling capabilities.
2.The motor's size and power rating depend on the crane's load capacity, which can vary significantly based on the intended application (ranging from a few tons to several hundred tons).Motors are typically designed to handle both the weight of the load and the inertia of the crane's components during operation.
3.Modern crane motors are designed to be energy efficient, reducing power consumption during operation. This is especially important in large cranes that handle heavy loads continuously over extended periods.Energy-efficient motors can lower operational costs, particularly in large-scale industrial applications.

.


9.Sound and light alarm system & limit switch
1.The sound and light alarm system and limit switches are vital safety components in a Double Girder Goliath Crane. They help ensure safe operation and prevent accidents by alerting operators to potential hazards and automatically preventing unsafe actions.
2.Sound and Light Alarm System
Purpose:To alert operators and nearby personnel of the crane's operation status, potential hazards, and emergency situations.
Operation:These systems are activated based on specific operational conditions or fault conditions. For example, if the crane is overloaded, the alarm system may activate to alert operators and prevent further operation until the issue is resolved.
Integration:The sound and light alarms are typically integrated into the crane's control system. They are triggered by sensors, limit switches, or the crane's control commands to ensure timely alerts.
3.Limit Switches
Purpose:To prevent the crane from exceeding its designed operational limits, protecting both the crane and the load from damage. They automatically stop crane movements when certain thresholds are reached.
Operation:Mechanical: Traditional limit switches use mechanical actuators that physically contact a lever or switch to signal the crane's control system.Electronic: Modern limit switches may use electronic sensors, such as proximity sensors or optical sensors, to detect position without physical contact.
Integration:Limit switches are integrated into the crane's control system and are connected to the motor drives. When a limit switch is activated, it sends a signal to the control system to stop or alter the crane's movement, ensuring safe operation.
4.Conclusion
Both sound and light alarms and limit switches are crucial for operational safety. Ensuring their proper function helps to prevent accidents, equipment damage, and ensures compliance with safety regulations.

10.Safety Devices
1.Overload Protection
Overload Sensors: These devices detect when the crane is lifting a load beyond its rated capacity. If an overload is detected, the crane's control system will automatically stop all lifting operations to prevent damage or accidents.
Load Cells: Integrated into the hoist system, load cells measure the actual load weight and provide feedback to the control system to ensure safe operation.
2. Limit Switches
Hoist Limit Switches: Prevent the hoist from lifting or lowering the load beyond safe limits. Upper and lower limit switches are used to stop the hoist at pre-determined heights.
Travel Limit Switches: Protect against the crane traveling beyond its designated rail limits. They stop the crane from moving past its travel boundaries.
Trolley Limit Switches: Prevent the trolley from moving too far along the girder, avoiding potential collisions or damage.
3. Emergency Stop Systems
Emergency Stop Buttons: Located at various points around the crane, these buttons immediately halt all crane movements when pressed. This is essential in emergency situations to quickly stop operations.
Emergency Stop Switches: Often integrated into the crane's control system, these switches are used to stop all movements if a critical safety issue is detected.
4. Braking Systems
Electromagnetic Brakes: Used to hold the load securely when the crane is stationary. They engage automatically when the motor is not running to prevent load drift.
Dynamic Brakes: Absorb the energy of the moving load during deceleration, providing smooth stopping and reducing wear on mechanical components.
5. Warning Systems
Sound and Light Alarms: Provide audible and visual warnings of crane operation status or potential hazards. For example, reversing alarms signal when the crane is backing up, and flashing lights alert personnel to moving loads.
Beacon Lights: Often used to indicate crane movement or load lifting, improving visibility and safety.
11.Control Mode
1.Manual Control
Radio Remote Control: An operator controls the crane using a handheld device that communicates wirelessly with the crane. The operator has the freedom to move around and position themselves for better visibility.
Pendant Control: A wired control device is suspended from the crane. The operator manually controls the crane functions like movement, hoisting, and positioning by pressing buttons on the pendant.
2. Cabin Control
The operator sits in a cabin mounted on the crane, with direct control of the crane's operations. This control mode is suitable for heavy-duty lifting operations where close supervision of the load is essential.
Provides a higher degree of visibility and control in complex lifting tasks.
3. Automatic or Semi-Automatic Control
Semi-Automatic Mode: Certain operations, like load lifting or movement along the rail, can be automated, while others require manual input from the operator.
Fully Automatic Mode: The crane operates based on pre-set commands or programs. Sensors and advanced control systems guide the movement, making it ideal for repetitive tasks.
4. Joystick Control
A joystick, either in the cabin or a remote control, allows the operator to move the crane in different directions with precise control.
5. PLC (Programmable Logic Controller) Control
PLC-based systems allow for the integration of automation, with a focus on safety features like overload detection, speed control, and positioning accuracy. PLCs can be programmed to optimize the crane's performance for specific tasks.
6. Inching Mode (Precision Control)
This mode is used for delicate operations where precise positioning of the load is required. It allows the crane to move in small, controlled increments.
7. VFD (Variable Frequency Drive) Control
The crane is controlled by a VFD, which allows smooth acceleration and deceleration, reducing wear and tear and providing finer control over speed and positioning.

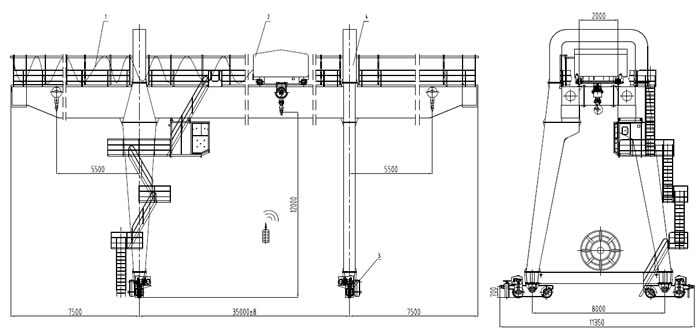
12.Sketch

Main technical data

Advantages
1.Higher Load Capacity
Increased Lifting Capacity: Double girder cranes can handle heavier loads compared to single girder cranes. This makes them ideal for applications requiring lifting heavy materials, with typical capacities ranging from 10 tons to over 500 tons.
Even Distribution of Load: The double girder design ensures that the load is evenly distributed across both girders, reducing the stress on individual components and increasing safety and longevity.
2. Greater Span and Coverage
Wider Span: Double girder goliath cranes can cover a larger working area due to the greater span between the girders. This makes them suitable for large industrial settings like shipyards, construction sites, and manufacturing plants.
Better Lifting Height: These cranes can lift loads higher since the hoist is positioned between the two girders rather than below a single girder, maximizing the available vertical space.
3. Enhanced Durability and Stability
Robust Construction: The double girder design provides enhanced structural stability, which helps the crane withstand higher stresses during operation, especially in rugged or demanding environments.
Reduced Deflection: Double girder cranes exhibit less deflection under heavy loads compared to single girder designs, leading to more precise load handling and increased safety.
4. Versatile Applications
Indoor and Outdoor Use: These cranes are versatile and can be used in both indoor warehouses and outdoor environments like shipyards and ports, providing flexibility in various industries.
Multiple Hoisting Mechanisms: The crane can accommodate multiple hoisting mechanisms or trolleys, enabling simultaneous handling of multiple loads or tasks.
5. Customizable for Specialized Tasks
Tailored for Specific Applications: Double girder goliath cranes can be customized with additional features like walkways, maintenance platforms, or auxiliary hoists for specific operational needs, such as lifting irregular or oversized loads.
Application:
1.Shipbuilding and Shipyards
Heavy Component Lifting: These cranes are used to handle and transport large and heavy components such as ship sections, engines, and hulls during construction and assembly.
Precise Load Placement: Their ability to lift heavy loads with precision is essential for aligning and assembling ship parts.
2. Construction Sites
Handling Construction Materials: Double girder goliath cranes can lift and move heavy construction materials like steel beams, precast concrete, and large structural components.
Bridge Construction: These cranes are used in bridge construction projects to lift and position massive girders, beams, and other structural elements.
3. Railway Yards
Rail Car and Track Handling: In railway construction and maintenance, double girder goliath cranes are used to handle rail tracks, train components, and heavy machinery.
Locomotive Maintenance: These cranes are essential for lifting locomotives and heavy rail equipment during repair and maintenance tasks.
4. Steel Mills and Metal Fabrication
Handling Large Metal Sheets and Rolls: In steel mills and metal fabrication plants, double girder cranes are used to move heavy steel coils, sheets, and finished metal products.
Molten Metal Transport: They are also used to transport molten metal in steel production, where high load capacity and precision are critical.
5. Ports and Container Terminals
Loading and Unloading Cargo: Double girder goliath cranes are used to lift and move heavy shipping containers, equipment, and bulk materials at ports.
Stacking Containers: These cranes can stack containers in large shipping yards, maximizing space utilization.
6. Power Plants
Heavy Equipment Installation: Power plants use these cranes to lift and install large equipment such as turbines, generators, and boilers.
Maintenance Tasks: The cranes are employed during maintenance procedures to remove and replace heavy machinery components.
Crane production procedure
Design: According to customer needs and site conditions, design the gantry crane's structure, size, load capacity, etc., and determine the type of crane (single-girder, double-girder, single-leg, double-leg, etc.).
Material preparation: Purchase raw materials such as steel plates, channels, I-beams, etc., and perform quality inspections.
Cutting and forming: Cut the raw materials into the required sizes and shapes, and process them into beams, legs, end beams, and other components.
Drilling and welding: Drill holes in the components for assembly and weld the parts together to form the crane's main structure.
Assembly: Assemble the mechanical and electrical components on the crane's main structure, such as hoists, pulleys, wire ropes, motors, etc.
Welding and machining: Weld the joints between the components and conduct necessary machining to ensure the accuracy of the crane's dimensions and structure.
Painting: Apply anti-rust paint or other surface treatments to the crane to protect it from corrosion and extend its service life.
Installation and commissioning: Install the crane at the designated location and carry out load testing and commissioning to ensure that it operates normally and safely.
Acceptance and delivery: Conduct acceptance checks according to relevant standards and specifications, and deliver the crane to the customer after passing the acceptance.

Workshop view
The company has installed an intelligent equipment management platform, and has installed 310 sets (sets) of handling and welding robots. After the completion of the plan, there will be more than 500 sets (sets), and the equipment networking rate will reach 95%. 32 welding lines have been put into use, 50 are planned to be installed, and the automation rate of the entire product line has reached.





Hot Tags: double girder goliath crane, China double girder goliath crane manufacturers, suppliers, factory, Bridge Crane, Double Girder Overhead Cranes, Ladle Foundry Bridge Crane, Upper Rotary Electromagnetic Bridge Crane, Train Wheels, Double Girder Overhead Travelling Crane
You Might Also Like
Send Inquiry




























